据昆明市住房和城乡建设局消息,《昆明市配售型保障性住房管理办法(试行)》(以下简称《管理办法》)已于7月9日正式印发,主要明确了配售型保障性住房的保障对象、准入条件、申购配售程序、封闭管理及监督管理等方面的内容。

自6月24日昆明市配售型保障性住房申购工作常态化开展以来,已有5300户申购家庭提交了在线申请。记者从昆明市公有房屋管理中心了解到,目前群众比较关注申购条件、人才群体的认定、回购方式、项目情况等问题。
《管理办法》中明确规定,“昆明市配售型保障性住房保障对象为:昆明市城镇户籍工薪收入群体及城市需要引进的人才等群体。已享受过房改房、经济适用住房等政策性住房实物分房的家庭,申购配售型保障性住房须按规定腾退原政策性住房。租住配租型保障性住房的,应当在购买配售型保障性住房后退出”。
其中,对人才群体的申购不设户籍限制,但须申购家庭未享受过房改房、经济适用住房等政策性住房实物分房,且满足以下条件之一:“春城计划”入选人才;昆明市“春城产业导师”入选人才;“昆明市名匠”入选人才;享受“国贴”专家、“省贴”专家,享受“省突”、“市突”专家;“三名”工程引进的名校长、“兴滇英才支持计划”教学名师专项基础教育领域教学名师(市属、县区属学校);“云岭名医”(市属、县区属医院);招商引资企业高层人员,即企业投资人、实际控制人及掌握最核心技术的高级人才;与昆明市辖区内专精特新中小企业签订3年以上劳动合同,且依法在昆缴纳社会保险满2年以上的全日制博士。
配售型保障性住房实行封闭管理,严禁以任何方式将配售型保障性住房变成商品住房流入市场。取得不动产权证未满5年的原则上不得申请回购,因辞职离开本市或重大疾病等特殊情况,可申请回购。配售型保障性住房回购工作由市住房城乡建设局统筹。购房家庭申请回购时,向市住房城乡建设局提出申请,由市住房城乡建设局负责审核。申请回购配售型保障性住房应满足以下条件:无贷款、无抵押、无租赁、未设立户口及居住权、无法律纠纷;未改变居住用途、房屋结构无拆改、设施设备无缺失;水、电、燃气、电信、有线电视等公共事业费用和物业服务费用已结清。
回购价格计算公式为:回购价格=原购买价格+[原购买价格×申请回购时国家公布的三年定期存款基准利率×房屋持有年限]-[原购买价格×(房屋持有年限×2%)]
以房屋100㎡,购买价6000元/㎡,房屋持有第5年申请回购,假设申请回购时国家公布的三年定期存款基准利率为2.75%,则回购价=6000×100+[6000×100×2.75%×5]-[6000×100×(5×2%)]=622500元。
预计配售平均价格在8000元/㎡以内
昆明市配售型保障性住房申购流程包括申购、项目及户型确认、审核、公示、复核、摇号、收件、选房及领取认购凭证、签订认购合同并交纳认购金,待房屋具备交付条件后,签订房屋买卖合同并交纳购房款、进行产权登记。需要注意的是,申购信息、项目及户型确认一经提交,不得更改。请广大申购家庭认真核对信息,避免因填写错误导致不能正常申购。
昆明市2024年计划开工建设8个配售型保障性住房项目5000套房源,预计配售平均价格在8000元/㎡以内,项目因区位、户型、楼栋、楼层、朝向等因素配售平均价格存在差异,最终配售价格经市人民政府审定后对外公开。呈贡区吴家营街道的KCC2024-2号地块配售型保障性住房项目已于4月26日开工建设,项目用地面积1.94万㎡,总建筑面积4.24万㎡,容积率仅为1.67,建设348套配售型保障性住房。(云南网记者 李莎)

呈贡区吴家营街道KCC2024-2号地块 配售型保障性住房项目地块区位图

呈贡区吴家营街道KCC2024-2号地块 配售型保障性住房项目效果图

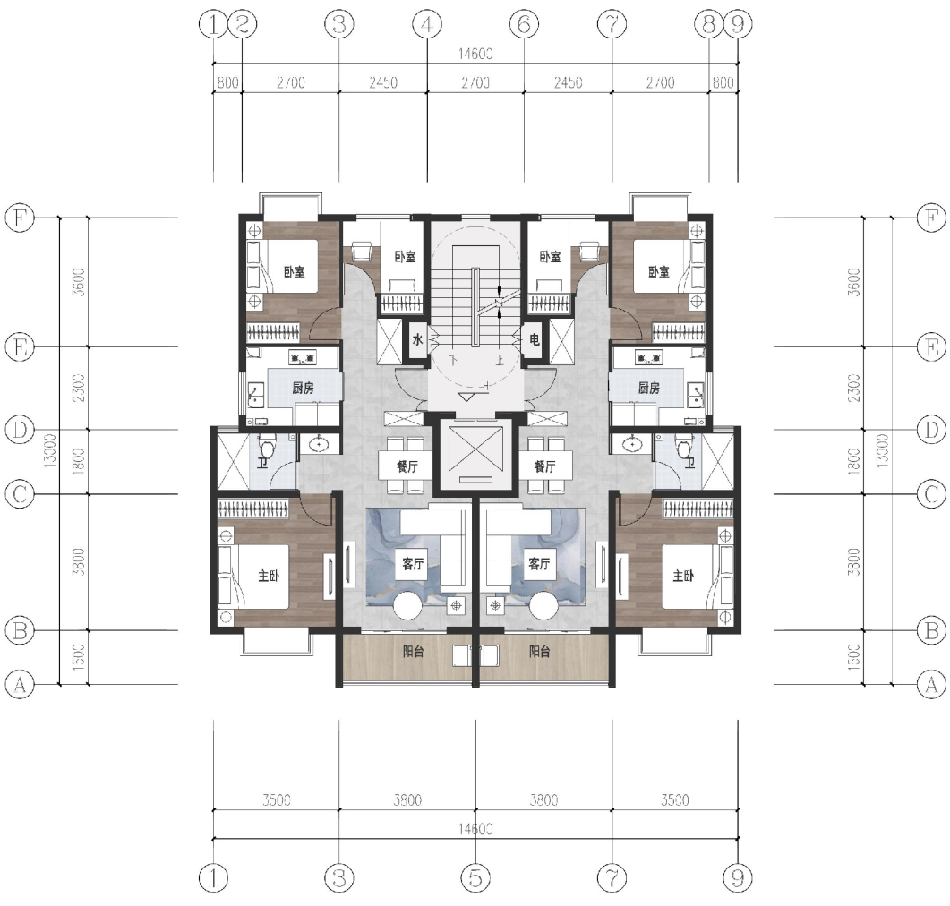
呈贡区吴家营街道KCC2024-2号地块 配售型保障性住房项目地块户型设计图
广大市民群众可通过以下渠道了解昆明市配售型保障性住房相关问题:
1、昆明安居网(www.kmajw.com)或昆明安居网微信公众号
2、昆明市公有房屋管理中心(地址:五华区护国路宝善街交叉路口昆明市经济适用住房业务服务大厅;电话:0871-64899211)
3、主城八区住房城乡建设(住房保障)部门设立的便民服务点

4、云南经济日报及同名微信公众号、视频号、抖音号、微博号、今日头条号
5、开屏新闻APP【住房保障】专区“配售咨询”页面